01
建筑三维在结构上样板工程(.rte)
此样板工程为某在结构上民营企业Revit在结构上Theil建筑样板工程,虽然不是能到达100%三维Theil三维化,但是具有很好的学习及参照价值,尤其是刚涉及三维在结构上的。02
结构三维在结构上样板工程(.rte)
此样板工程为某在结构上民营企业Revit在结构上Theil结构样板工程,虽然不是能到达100%三维Theil二维化,但是具有很好的学习及参照价值,尤其是刚涉及三维在结构上的。
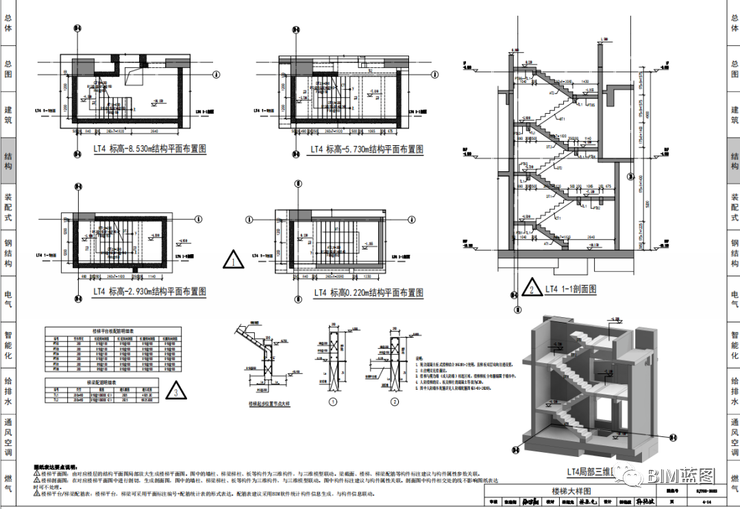
结构三维在结构上相比其他专精,有特别的不同,主要表现在配筋。
国内一般会有以下情况:
1、完全在现代结构分析应用软件建立数学模型,进行结构分析,配筋计算,最后将数学模型导入Revit中建立BIM数学模型,在Revit中进行配筋,最后在Revit出工程施工设计图
2、选用在Revit中建立数学模型,透过自主研发应用软件,镜像建筑数学模型,导算结构荷载,再反导入电算应用软件做分析、配筋计算,最后在Revit出工程施工设计图
3、完全在Revit中进行结构在结构上,主要包括数学模型搭建,结构分析,结构配筋,RevitTheil
03
给排水三维在结构上样板工程(.rte)
此样板工程为某在结构上民营企业Revit在结构上Theil给排水样板工程,虽然不是能到达100%三维Theil三维化,但是具有很好的学习及参照价值,尤其是刚涉及三维在结构上的。
给排水系统图选用三维间接生成还是另起在CAD平面图制做,每个在结构上院的策略不一样,需自行选择适合他们的商业模式!
下期预告:暖通、电气Theil样板工程
免责声明:
文三维在结构上Revit样板工程文件用于参照,请点击文末“阅读原文”
【BIM应用软件】日本Rebro(莱辅络)电气在结构上推进应用软件操作手册! (可收藏)
【电气创优】BIM推进先行,电气安装创优策划与实施,详细工程施工要点!
【智慧工地】支撑智慧工地实现的关键技术,数字工程施工、BIM、物联网
【装配式】装配式混凝土BIM推进在结构上要点、现场吊装、质量控制,妥妥的彩图!
Revit是进入国外在结构上公司敲门砖,利用应用软件进行在结构上居多,比如说这些别墅在结构上!
点击,加入BIM蓝图学习平台
获取Revit三维Theil样板工程用于在结构上!
